|
手机版
|
无障碍
|
关怀版

正宁县人民政府

自然资源局政府信息公开

全文检索
索引号: 3070211020000013000000/2026011600000006 发布机构:
生效日期: 2026-01-16 废止日期:
文 号: 所属主题: 规划信息

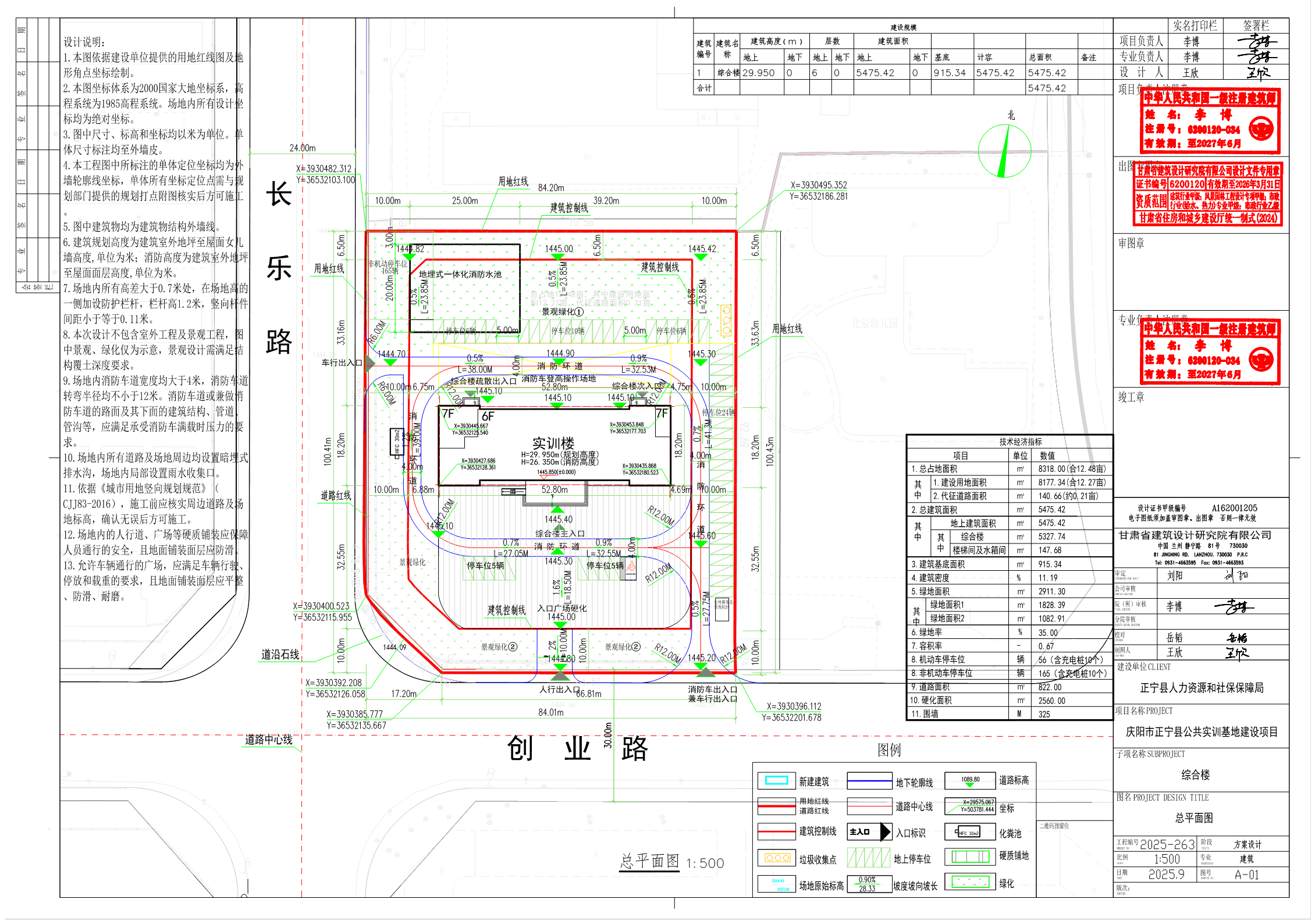
庆阳市正宁县公共实训基地建设项目总平面图

来源: 发布时间:2026-01-16 浏览次数: 【字体:

【打印正文】
分享到:
【字体: